История создания ГСК "Выборгский"
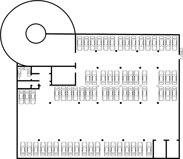
5 -этажный многофункциональный паркинг на 308 машино-мест
Паркинг начал строиться с 1986 г. Учредителями ГСК “Выборгский” стали Игнатов Борис Михайлович и Московцев Дмитрий Алексеевич. Окончание строительства - 2003 году. В этом же году он был сдан Гостехкомиссии. В паркинге имеется 308 машино-мест. Кроме этого в помещении паркинга имеется ветеринарная клиника ООО “Ветус” и мойка ООО “Сервистехнология”- владельцами которых являются отдельные собственники занимаемых помещений.
В настоящее время комплекс ГСК "Выборгский" является современным много функциональным комплексом который имеет собственную круглосуточную охрану с великолепным техническим оснащением как и периметровой охраны так и видео наблюдения. Действующие на территории ГСК организации не однократно высказывали администрации комплекса свои хорошие отзывы о административном управлении ГСК о чем имеются записи в книги отзыва.
Преимущества нашего паркинга:
- Удобство. У жителей ближайших домов и соседних кварталов дорога до паркинга займет несколько минут.
- Безопасность. В паркинге предусмотрена круглосуточная охрана, все этажи будут снабжены системой видеонаблюдения. На въезде устанавливаются ворота со шлагбаумом и системой автоматизированного контроля доступа.
- Экономия времени. Вам не нужно бороться с атмосферными осадками и ежедневно в зимнее время откапывать своего железного коня, а по вечерам искать место для парковки.
- Гарантия на будущее. Паркинг – капитальное сооружение, расположенное на земельном участке, оформленном в собственность. Его не снесут как плоскостной гараж и не закроют как открытую автостоянку. Машино-место - Ваша собственность, и автовладелец может быть уверен, что никто не им воспользуется.
- Универсальность. Габариты паркинга и машино-мест позволяют обеспечить парковку практически любых легковых автомобилей.
- Хорошее вложение денег. Парковочное место Вы можете сдавать в аренду или же продать после завершения строительства, что обеспечит Вам дополнительный доход. Сдача в аренду нескольких машино-мест – выгоднее сдачи в аренду квартиры.
- Экология. Паркинг — это благоустроенный двор! Хранение автомобилей в паркингах - это гарантия того, что детские площадки, пешеходные дорожки и газоны в Ваших дворах не превратятся в одну сплошную автопарковку.
- Прозрачность управления. Покупатель машино-места становится членом ГСК и может принимать участие в решении всех вопросов, касающихся паркинга.
-
Схема размещения машино-мест в ГСК "Выборгский"

ПЯТЬ ПРИЧИН КУПИТЬ ПАРКИНГ И НЕ БРОСАТЬ МАШИНУ НА УЛИЦЕ
В настоящее время территории вокруг наших домов уже похожи на стихийную пробку или станку крупного магазина. Владельцы своих автомобилей паркуют их где придётся, тротуарах, газонах, детских площадках и даже на помойках, и не редко вступают в конфликты из-за места. Что делать в этом случае просто приобрести паркинг.
Причина №1: не берегись автомобиля
Первый и самый очевидный довод сделать выбор в пользу покупки паркинга – разумеется, сохранность и безопасность. По статистике ГИБДД по Петербургу и Ленобласти, в прошлом году горожане лишились 5557 машин в результате угонов. В фаворе у преступников спальные районы и в пику иллюзиям среднего класса – не элитные авто, а экономичные «солярисы», «рио» и «фокусы». Обратно их возвращают в исключительных случаях. И чаще всего угоняют транспорт именно с придомовой территории. Даже если вы отмахиваетесь от этой мысли в русле «это не про меня», охраняемый паркинг в новом доме, оборудованный камерами, избавит от рисков случайных или неслучайных повреждений, что далеко не редкость.
Причина №2: найдётся не всё
Согласно опросам автомобилистов, в обжитых спальных районах люди тратят ежедневно 10–15 минут на то, чтобы подыскать свободное место для авто. Дворы советских многоэтажек попросту не были рассчитаны на такое количество транспорта, а в современных есть подземные паркинги, так что массовые парковки а-ля ближайший ТЦ здесь не предусмотрены. Поэтому о машине под вашим окном можно только мечтать. В большинстве своём это в лучшем случае место возле соседней парадной, в худшем – вообще другой двор. С паркингом же всё просто: есть конкретное место, которое никто не займёт.
Причина №3: без танцев с лопатами
В современных паркингах круглый год поддерживается одинаковая температура. Примерно +15 градусов. Это избавляет от многих проблем, с которыми автомобилисты сталкиваются зимой и экономит полчаса жизни каждый день. Во-первых, машину не надо чистить от снега. Во-вторых, её не нужно отогревать: сел и поехал по делам. Но холодными месяцами дело не ограничивается. В паркингах автомобиль защищён от осадков, ржавчины, выгорания на солнце.
Причина №4: машина во дворе без машин
Многие из новых ЖК, строящихся или уже введённых в эксплуатацию, ориентируются на относительно новую для Петербурга концепцию: двор без машин. Если у вас так, то считайте, повезло, поскольку это решает многие проблемы: дети безопасно гуляют во дворе, а вам не нужно лавировать между транспортом, спускаясь в магазин. Но есть одно но: такой уровень комфорта не предполагает стихийных парковочных мест. Все они сосредоточены в подземном паркинге. Более того, в подобных обжитых спальных районах обычно плотная застройка и узкие улицы. И поиск места для машины по соседству также может вызывать трудности.
Причина №5: паркинг на будущее
Если вы живёте в новом доме или активно общаетесь с друзьями-новосёлами, то наверняка знаете, что часть из них покупает паркинг не для себя, а использует как инвестицию. С 2017 года в России парковочное место стало объектом недвижимости. Соответственно его можно впоследствии продать существенно дороже или сдавать в аренду и иметь хорошую прибавку к зарплате.